
アトリエスペースのイメージパース
美術(平面・立体)、工芸品、家具、アクセサリーなど、真剣に“モノづくり”に取り組みたい方を応援します!
新築時、こんなキャッチコピーで入居者募集されたのが今回ご紹介する「ワク賃040」です。
この物件は当ウェブマガジンで2021年3月に連載開始した「アトリエ賃貸推進プロジェクト」と時期を同じくして企画され、同年8月に完成しました。
アトリエ賃貸推進プロジェクトは「アトリエや工房がついた賃貸住宅(=アトリエ賃貸)を日本中に増やしていくこと」を目的にスタートしましたが、ちょうどそのタイミングで神奈川県横浜市南区に複数の借地権付き土地を所有しているオーナーと出会い、アトリエ賃貸の新築をご提案。「競争力のある賃貸住宅を建てたい」というご希望にマッチし、プランを協働でつくりあげました。
このアトリエ賃貸にオーナーは「キャンバスハウス」という名前をつけられ、今後もこの名前で同様の新築物件をつくっていくと表明してくださっています。
本稿ではキャンバスハウスの初号となる「ワク賃040」を詳しくご紹介したいと思います。
まずは最大のセールスポイントであるアトリエスペースの説明から!

1階のアトリエスペース。
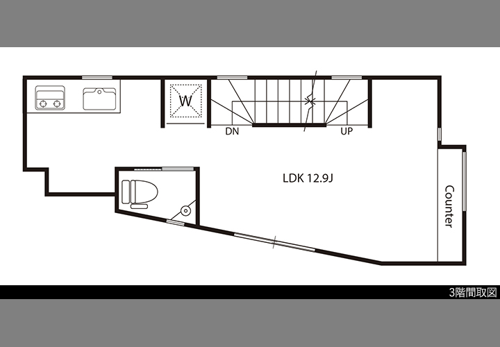
「ワク賃040」は木造3階建ての一戸建てで、1階がアトリエスペース、2階がリビング・ダイニング・キッチン、3階が寝室(2室)になっています。3フロア合計で専有面積は73.54㎡ありますので、戸建て賃貸としてはなかなか広めと言えます。
アトリエスペースの特長の第一は床が土間になっていること。
土間なので水をこぼしても大丈夫ですし、汚れもさほど気にする必要がありません。
版画のプレス機など重量のあるものも余裕で設置できます◎

アトリエスペースの壁一面にはOSB合板が貼られています。
アトリエスペースの壁の一面にはOSB合板が貼られています。
OSB合板は釘やネジを打ち込んでも大丈夫な建材で、DIYで棚などを自由に設置していただけます。
OSB合板を採用した一番の理由は額縁をいくつも飾れるようにするためです。
画家の方にとっては作品のストックスペースが重要と聞き、壁一面に好きなだけ飾れるよう工夫をしました◎

天井のライティングレール。
照明はライティングレールを2本設置し、制作に必要な明るさや色で光を調整できるようにしています。窓も多数設けられていますので、自然光も取りこむことができます。

アトリエスペースに設けられた洗面台。画材を置くスペースもあって便利。
アトリエスペースには洗面台も設置されていますので、水を使ったり、絵筆を洗ったりするとき便利だと思います。作業をしやすいよう、カウンターも広めに取られています。

玄関扉は引き戸タイプ。写真は扉を開いて網戸にしたところ。
玄関扉には作品の搬出入がしやすいよう、引き戸が用いられています。
網戸もついていますから、風を通したいとき重宝しそうです◎

階段から見下ろしたアトリエスペース。
天井の高さは2階・3階が2.40mであるのに対し、アトリエスペースは2.55mとやや高くなっています。もう少し高いほうが大きな作品をつくるのには便利だと思うので、この点は次回の課題でしょうか。

2階間取図。

2階のリビングダイニングスペース。奥にカウンターが設けられています。
続いて2階をご案内します。前述の通り、2階はリビング・ダイニング・キッチンになっています。12.9畳ほどの広さがあり、窓が多いからなかなかの開放感。奥にはテレビなどが置けるカウンターが設けられています。

階段横のミニ書斎スペース。
階段横にはちょっとした空きスペースがあり、ここに小さなデスクとチェアを置けばミニ書斎に早変わり。天井にカーテンレールを設置して、収納スペースにしてもいいですね。
キッチンはワイドが1800mmと広め。ガスコンロも2口あり、グリルもついているので、料理を楽しむには十分です。
トイレは2階にあります。
当初、1階と3階に置くことも考えましたが、1階はアトリエスペースを、3階は寝室スペースをそれぞれ少しでも広くすることを重視し、2階にひとつだけ設置しました。
小さな手洗いもついていて、合理的な感じです。
洗濯機置場は家事動線を考慮し、キッチンの脇に設けられています。生活感を極力出したくない方のためにロールスクリーンで見えなくすることもできるようになっています。
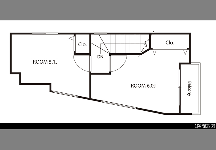
3階には寝室が2室あります。それぞれの部屋にクローゼットがついているため、「ワク賃040」は美術家の友人とのルームシェアにもとても向いていると思います。アトリエをシェアし、広いリビングで一緒にゆったり寛ぎ、自分の部屋で静かに過ごす。そんな生活も素敵ですね◎
1階は先にアトリエスペースだけご紹介しましたが、そのほかにバスルーム、脱衣所があります。
バスルームは1616サイズあって、とてもゆったりしています。追焚き機能や浴室乾燥暖房機ももちろんついていますよ。
脱衣所には収納棚があり、ここに下着やタオルなどを置けて、とても便利。
玄関から入って右側、階段前にシューズボックスが設置されていますが、これも天井までの高さがあるので収納量は豊富。シューズ以外のものを置くこともできますね。

「ワク賃040」は設備もかなり充実しています。
とりわけ強調したいのは次の2点。
1点目はエアコンがアトリエスペースも含めて全室に設置されていること。
もう1点は上の画像のメールボックス&宅配ボックスがついていることです。戸建賃貸なのに宅配ボックスがついているのは少し珍しいかもしれません。見た目もけっこうおしゃれで、アトリエ賃貸にはピッタリな感じです。
宅配ボックスの隣りの空いているスペースには自転車も停められます。自転車はもちろんアトリエスペース内に保管することもOKです。

「ワク賃040」の最寄り駅は横浜市営地下鉄ブルーライン「吉野町」駅で、同駅からは徒歩8分です。ほかに京急線「南太田」駅までも徒歩11分で行けます。
ターミナルとなる「横浜」駅まで「吉野町」駅からは約10分、「南太田」駅からは約7分という近さなので、通勤・通学にはかなり便利だと言えるでしょう。
物件周辺はスーパー「いなげや」まで徒歩1分、コンビニの「ローソン」まで3分、「セブンイレブン」まで5分ですから、買い物の便もバッチリ。
私のお気に入りポイントは歩いて5分のところにある「蒔田公園」です。
ここにはアスレチックのような遊具がいくつもあって、子どもを遊ばせるにはもってこい。広い芝生やベンチなどがあるので、大人ものんびり寛げます。
さらに内設されている「ふれあいアクアパーク」ではカヌー体験もできるというから面白い。「ワク賃040」で暮らし始めたら、一度はやってみてもらいたいです。

新築アトリエ賃貸「キャンバスハウス」シリーズの初号「ワク賃040」はいかがでしたでしょうか?
この物件は戸建てなので、1階のアトリエスペースをギャラリーにすることもできますし、ピアノなど楽器を演奏することもOK。
またイヌ、ネコなどのほか、水槽を置いて熱帯魚などを飼育することも認められています。
オーナーは入居者さんのDIYにも理解があって、きちんと申請し、承認を得てくれれば、アトリエスペースを中心に、自分が使いやすいよう棚をつけたり、照明を増設したりすることも認めてさしあげたいとおっしゃっています。
クリエイティビティあふれる「キャンバスハウス」シリーズは、今後も増やしていかれる予定で、「空き待ち」登録をしてくだされば、空き情報だけでなく新築情報もお知らせしますので、是非お手続きください。
物件情報
- 物件コード:ワク賃040
- 住 所:神奈川県横浜市南区東蒔田町
- 構 造:木造 3階建
- 築 年 月:2021年8月
- 専 有 面 積・間取り:73.54㎡ 3LDK
- 専有部設備:アトリエスペース(土間) / フローリング(土間以外) / キッチン(W1800・2口ガスコンロ・グリル付き) / 独立洗面台(アトリエスペースのシンク兼用) / バスルーム(1616サイズ・追焚き機能・浴室暖房乾燥機付き) / シャワートイレ(コーナー手洗い付き) / 室内洗濯機置場(ロールスクリーン付き) / クローゼット2箇所 / エアコン(4台) / バルコニー / TVモニタホン / ディンプルキー / 室内照明器具(アトリエスペースはライティングレール) / J:COM(地デジ・BS・CS6ch) / 自転車駐輪可 / メールボックス&宅配ボックス / 火災報知器 / 都市ガス
募集条件
- 賃料:前回募集時は14万円台でした。
- 管理費:4,000円
- 敷金:1ヵ月 ※ペット飼育する場合は2ヵ月(解約時償却なし)
- 礼金:なし ※1年以上の入居が条件。1年未満で退去する場合は賃料の1ヵ月分違約金。
- 契約期間:2年
- 更新料:新賃料の1ヵ月分+消費税
- 火災保険:加入必須
- 保証会社利用:必須
- 24時間サポート代:月額1,000円
- 町内会費:月額300円
- 解約予告:1ヵ月前
- ペット飼育:可(種類・数は応相談)
- 「空室が出たら連絡がほしい!」という方は
「お問合せ」ページを利用してご登録ください。
空室が出た場合と、類似のワクワク賃貸®物件ができたときのみ、ご連絡いたします。
文:久保田大介
